Werkzaamheden Entreegebouw
Werkzaamheden februari 206
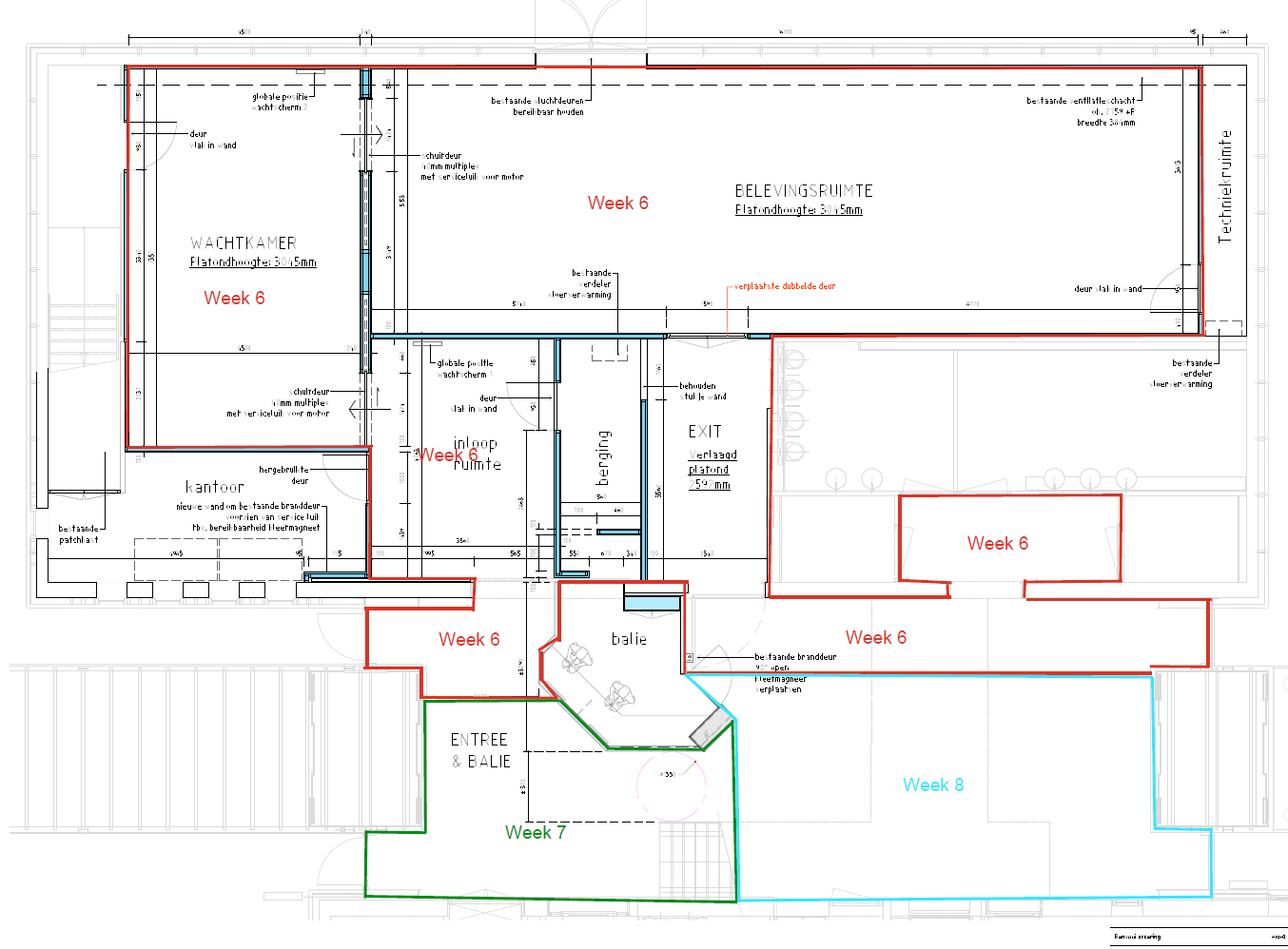
Planning werkzaamheden februari: vloerafwerking & elektrische deuren
In februari vinden er bij Museum BroekerVeiling werkzaamheden plaats aan de vloerafwerking en de elektrische entreedeuren. Deze werkzaamheden zijn nodig vanwege vernieuwing en verbetering en maken deels onderdeel uit van de nieuwe vaste tentoonstelling die momenteel wordt opgebouwd.
Elektrische deuren – week 6 (3 t/m 6 februari)
De elektrische deuren aan zowel de voorzijde als achterzijde van het entreegebouw worden vervangen vanwege veroudering en het risico op uitval.
De deuren zijn niet volledig afgesloten; doorgang blijft mogelijk.
Vloerafwerking – fasegewijs (week 6 t/m 8)
De vloerafwerking start op maandag 2 februari en loopt door tot vrijdag 20 februari. Het betreft de ruimtes van de nieuwe vaste tentoonstelling, de centrale hal en de inloop van de toiletten. De werkzaamheden worden in fases uitgevoerd:
Week 6
Nieuwe vaste tentoonstelling.
Deel van entree nabij brandmeldcentrale (BMC).
Toiletten (zijn dan niet te gebruiken).
Week 7
Trap naar de 1e verdieping is dan niet toegankelijk, men kan dan via de deur (bij BMC), inloop, berging en balie naar de lift om naar de 1e verdieping te gaan.
Bezoekers komen binnen via de deur bij de BMC.
Lift is te gebruiken.
Elektrische deuren voorzijde entree blijven gesloten.
Week 8
Elektrische deuren entree achterzijde gesloten.
Lift vanaf de begane grond niet te gebruiken.
Route naar de kelder: via trap naar 1e verdieping, daarna met de lift naar de kelder.
Tijdens en na het aanbrengen van de vloer geldt dat er niet over de vloer gelopen mag worden, ook niet in het weekend, i.v.m. droog- en uithardingstijd. Het is mogelijk dat er tijdelijk geur wordt waargenomen.
Zie de afbeelding waarin de fases van de vloerafwerking visueel zijn weergegeven.
We vragen iedereen om begrip, flexibiliteit en medewerking, en om bezoekers zo duidelijk mogelijk te informeren en te begeleiden waar nodig.
Voor vragen of meldingen kun je terecht bij William Mosch.
